Salon Ambience a differenza di molte altre aziende italiane, nella progettazione di un componente di arredo, ha sempre ricercato uno stile caratterizzato da due elementi fondamentali: durevolezza e neutralità.
La scelta di materiali di elevata qualità e di un design moderno e lineare permette infatti di valorizzare al massimo la persona e le sue esigenze, senza imporre linee troppo esasperate o rigorosamente legate alla moda.
Il salone è infatti lo spazio di lavoro quotidiano di un professionista estremamente creativo: l’acconciatore; per questo motivo, l’arredo deve dare vita ad un ambiente piacevole ed accogliente, che conduca al benessere ma che lasci anche libero spazio alla creatività di chi lo vive.
Il design Salon Ambience in sintesi crea un ambiente di vita moderno e dinamico, che esalta la personalità dell’acconciatore ed asseconda la sua evoluzione.
Dal Sogno alla Realtà
L'uso della progettazione a computer dei saloni dà la possibilità al cliente di avere una visione molto realistica del nuovo salone con gli articoli che ha appena scelto. Questo piccolo percorso mostra come la nostra esperienza di salon designer può guidarti attraverso il progetto dall'inizio alla fine o…dal sogno alla realtà.
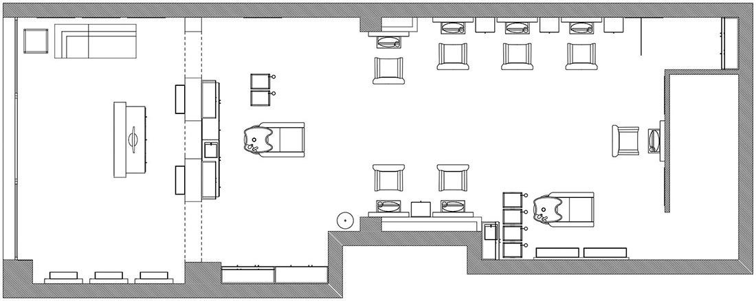
Fase 1
Un disegno 2D, creato dal Design Centre di Salon Ambience, è il primo passo verso la proposta di progetto al Parrucchiere. Questo può essere usato per mostrare al cliente l'esatto layout del salone.
Fase 2
Dopo il disegno 2D si passa al "Photo-rendering", un disegno che incorpora la prospettiva in 3D, colori e finiture che il cliente ha chiesto. Questo permette di mostrare al cliente come sarà il salone progettato nel modo più vicino possibile alla realtà.
Fase 3
Un altro disegno in "Photo-rendering" questa volta fa vedere il salone dall'interno. Questo permette di mostrare in maniera più dettagliata le scelte del cliente, tipologia del legno, dello sky etc.
